iQ Makelaars Feedbackcompany
9.5 10
252 reviews
9,6 10
101 beoordelingen
 
MUNTENDAM, Middenweg 95
 

Middenweg 95 MUNTENDAM

Vraagprijs € 375.000,-
k.k.
Vraagprijs € 375.000,-
k.k.
Middenweg 95 MUNTENDAM
  • TypeVrijstaand
  • Woonoppervlakte127 m²
  • Perceelgrootte535 m²
  • Slaapkamers4
  • Aangeboden sinds12-11-2025
  • Beschikbaarheid
Vraag bezichtiging aan

Omschrijving

“Wat een karakter!” Deze vrijstaande jaren ’30-woning aan de Middenweg in Muntendam ademt sfeer en vakmanschap. De mooie erker aan de voorzijde, de authentieke details en de tot in de puntjes verzorgde afwerking maken dit huis tot een plek waar je je direct thuis voelt.

De woonkamer is een heerlijke plek om te zijn: sfeervol, licht en comfortabel. Op koude dagen zorgt de pelletkachel voor warmte en gezelligheid, terwijl de moderne cv-installatie zorgt voor optimaal wooncomfort. De woning is volledig geïsoleerd (vloer, muur én dak) en voorzien van grotendeels kunststof kozijnen met HR++-glas. Ook de houten kozijnen zijn uitstekend onderhouden en voorzien van dubbel glas. De keuken en badkamer zijn modern en netjes, en de gehele woning is met liefde onderhouden. Alles straalt zorg en kwaliteit uit. Levensloopbestendig wonen is mogelijk door een slaapkamer op de begane grond te creëren.

De ruime, fraai aangelegde tuin is een oase van rust. Hier geniet je volop van het buitenleven.
Het bijgebouw is een echte verrassing: een sfeervolle, geïsoleerde en verwarmde tuinkamer, een overkapping waar je tot laat in de avond kunt zitten en een praktische schuur. Aan de zijkant van de woning bevindt zich bovendien een stenen garage met carport, meer dan genoeg ruimte voor auto, fietsen en hobby’s. En met maar liefst 15 zonnepanelen woon je hier niet alleen comfortabel, maar ook duurzaam.

De ligging is perfect: op steenworpafstand van de dorpskern van Muntendam met winkels, horeca, sportverenigingen en scholen. Een bushalte met verbindingen in verschillende richtingen ligt op slechts 80 meter van de woning. En wil je een dagje naar de stad Groningen? Deze bereik je in ongeveer 25 minuten met de auto.

Kortom: Middenweg 95 combineert de charme van een karaktervolle jaren ’30-woning met het comfort en de duurzaamheid van nu. Een plek waar alles klopt, van binnen én van buiten.

INDELING
Begane grond: entree, ruime hal met mogelijkheid tot het maken van een werk-/slaapkamer, woonkamer met erker en pelletkachel, eethoek met open keuken, moderne keuken voorzien van diverse inbouwapparatuur (o.a. inductiekookplaat, combi-oven, koelkast, afzuigkap en vaatwasser), vaste trap naar kelder waar je spullen kunt opbergen, vanuit de hal is het toilet met wastafel bereikbaar en de zeer ruime, luxe badkamer voorzien van douche, bad met whirlpoolfunctie en een dubbele wastafelmeubel, bijkeuken met de opstelplaats voor de HR-combiketel en de wasmachineaansluiting.

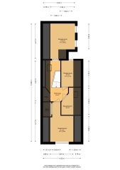
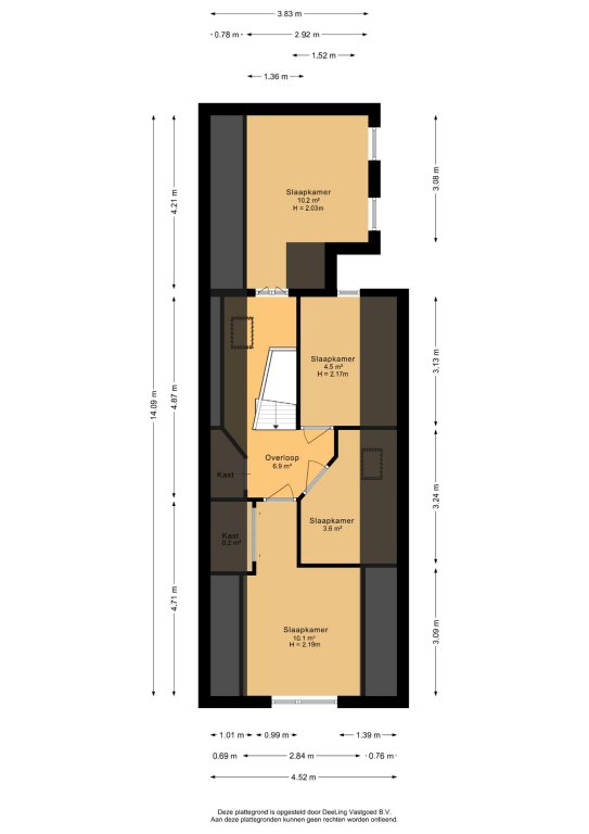
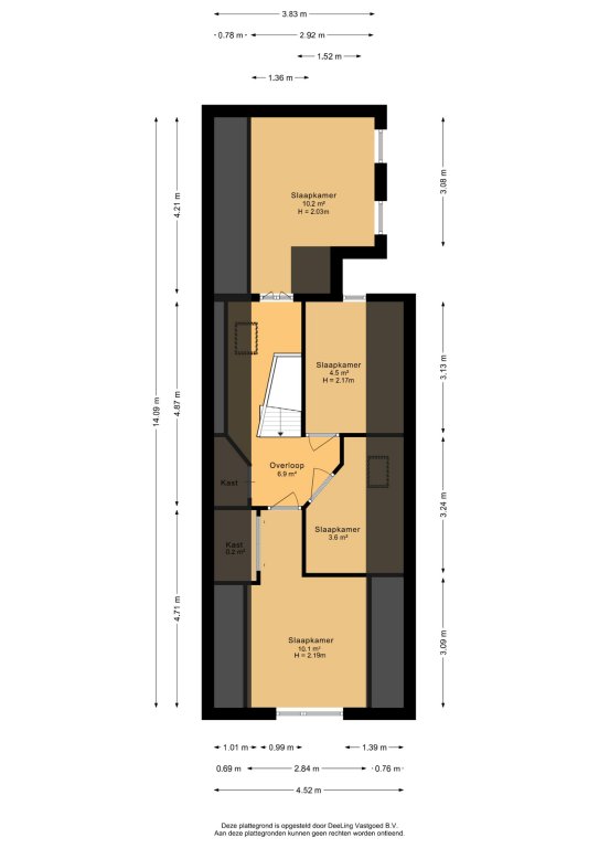
Eerste verdieping: overloop, vier slaapkamers.

Buiten:
De achtertuin is ideaal gelegen op het zuidoosten. Achterin de tuin staat een fraai en ruim houten bijgebouw met een geïsoleerde en verwarmde tuinkamer waar je prima kunt werken of logeren. Daarbij is er een overkapping en een schuur. Aan de zijkant van de woning staat de stenen garage met elektra en een carport. Eigen oprit met genoeg ruimte voor meerdere auto’s.

OVERIG
. Hoofddak vernieuwd en geïsoleerd in 2023
. 15 zonnepanelen (2016)
. De woning is uitgebouwd in 2021
. Cv-ketel in eigendom (Remeha, 2012)
. Eigen oprit met carport en garage
. Geïsoleerde en verwarmde tuinkamer
. Deels houten en deels Keralit-gevelbekleding

Vraagprijs: € 375.000,- k.k.
Aanvaarding: in overleg

Nieuw bij iQ Makelaars: plan je eigen bezichtiging in!
Vraag via Funda een bezichtiging aan; je ontvangt een e-mail waarmee je jouw afspraak eenvoudig kunt inplannen. Bellen kan uiteraard ook via 050-7601777.

Meer

Neem contact op

Specificaties

Bouw

  • Soort Woningen
  • Type Vrijstaand
  • Bouwjaar 1933

Energie

  • Energielabel D

Indeling

  • Slaapkamers 4

Afmetingen

  • Woonoppervlakte 127 m²
  • Perceeloppervlakte 535 m²
  • Woninginhoud 449 m³
Meer

Plattegrond

  Pand
  Pand
  Pand
  Pand

Vraag bezichtiging aan

Wat is jouw huis waard?

Gratis rapport iQ Makelaars Leadtool

Contact

iQ Makelaars Groningen
Kraneweg 23
9718 JD Groningen

Makelaar Groningen  groningen@iqmakelaars.nl
Makelaar Groningen  050 - 760 17 77

050 - 7601 777

Openingstijden

Maandag t/m vrijdag 9.00 - ca. 17.30 u Zaterdag: 10.00 - ca. 16.00 u.

Volg ons

 

Onze beoordelingen

Onze klanten beoordelen ons met een 9,6 / 10. Elke klant met een unieke ervaring. Benieuwd naar de verhalen?

Bekijk alle beoordelingen