iQ Makelaars Feedbackcompany
9.5 10
252 reviews
9,6 10
101 beoordelingen
 
APPINGEDAM, Harmoniestraat 43
 

Harmoniestraat 43 APPINGEDAM

Vraagprijs € 249.000,-
k.k.
Vraagprijs € 249.000,-
k.k.
Harmoniestraat 43 APPINGEDAM
  • TypeVrijstaand
  • Woonoppervlakte85 m²
  • Perceelgrootte151 m²
  • Slaapkamers3
  • Aangeboden sinds26-02-2026
  • Beschikbaarheid
Vraag bezichtiging aan

Omschrijving

Sfeervol vrijstaand wonen op loopafstand van het historische hart van Appingedam.
In een geliefde woonomgeving, op steenworp afstand van het centrum van Appingedam, staat dit charmante en instapklare vrijstaande woonhuis met drie slaapkamers en een besloten achtertuin. Bij deze vrijstaande woning komt comfort en karakter samen, ideaal voor wie rustig wil wonen met alle voorzieningen binnen handbereik.

Met een perceel van 151 m², een vernieuwde keuken (2024) en recent gemoderniseerde afwerking biedt deze woning een eigentijdse woonbeleving in een historische setting.

Appingedam staat bekend om haar schilderachtige grachten, sfeervolle straatjes en natuurlijk de wereldberoemde Hangende Keukens. De stad ademt historie, maar is tegelijkertijd levendig en compleet met winkels, horeca, scholen, sportfaciliteiten en uitstekende openbaar vervoersverbindingen (trein en bus). Hier woont u rustig, maar toch centraal.

INDELING
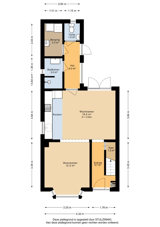
Entree, hal, lichte woonkamer met mooie erker aan de voorzijde, eethoek met open keuken en openslaande deuren naar de tuin, de keuken is vernieuwd in 2024 en voorzien van alle gemakken. Tweede hal met toegang naar de badkamer voorzien van douche en wastafel, bijkeuken voorzien van de wasmachine aansluiting en C.V.-ketel (2015), toilet met wastafel.
Eerste verdieping: overloop met inbouwkast, drie slaapkamers die allemaal voorzien van inbouwkasten.
Tweede verdieping: vliering met opbergruimte

Buiten:
De besloten achtertuin is gelegen op het noordwesten en biedt volop privacy. Dankzij de achterom en de externe berging is de tuin ook praktisch in gebruik. Een fijne plek om te ontspannen.

EXTRA
- In 2024 is de woning opgeknapt met een nieuwe keuken, de woonkamer en de keuken zijn gestuct en er zijn nieuwe vloeren geplaatst
- Airco in de woonkamer
- Vrij parkeren in de straat
- In de straat is een speelveldje gelegen
- 'As is-where is'-clausule & Ouderdomsclausule van toepassing

Vraagprijs: € 249.000,- k.k.
Aanvaarding in overleg

Wanneer je via Funda een bezichtiging aanvraagt voor een woning, ontvang je per e-mail een bericht om de bezichtiging in te plannen op een moment dat jou uitkomt. Je kunt er ook voor kiezen om direct via onze eigen website een afspraak te maken. Ga hiervoor naar de pagina van de betreffende woning en plan eenvoudig zelf een bezichtiging in via de beschikbare link.

Uiteraard kun je ons ook altijd telefonisch bereiken via 050 7601 777 om een afspraak te maken of als je nog vragen hebt. We helpen je graag verder!

Meer

Neem contact op

Specificaties

Bouw

  • Soort Woningen
  • Type Vrijstaand
  • Bouwjaar 1928

Energie

  • Energielabel G

Indeling

  • Slaapkamers 3

Afmetingen

  • Woonoppervlakte 85 m²
  • Perceeloppervlakte 151 m²
  • Woninginhoud 334 m³
Meer

Afbeeldingen

 
 
 
 
 
 
 
 
 
 
 
 
 
 
 
 
 
 
 
 
 
 
 
 
 
 
 
 
 
 
 
 
 
 
 
 
 

Plattegrond

  Pand
  Pand
  Pand
  Pand

Vraag bezichtiging aan

Contact

iQ Makelaars Groningen
Kraneweg 23
9718 JD Groningen

Makelaar Groningen  groningen@iqmakelaars.nl
Makelaar Groningen  050 - 760 17 77

050 - 7601 777

Openingstijden

Maandag t/m vrijdag 9.00 - ca. 17.30 u Zaterdag: 10.00 - ca. 16.00 u.

Volg ons

 

Onze beoordelingen

Onze klanten beoordelen ons met een 9,6 / 10. Elke klant met een unieke ervaring. Benieuwd naar de verhalen?

Bekijk alle beoordelingen