Fijn gezinshuis met ruimte aan de Erasmusweg!
 
Ben je op zoek naar een nette, ruime woning met tuin én een gunstige ligging? Dan is Erasmusweg 21 in Hoogezand precies wat je zoekt!
 
Deze goed onderhouden tussenwoning uit 1964 biedt bijna 100 m² woonoppervlak en beschikt over vier slaapkamers: ideaal voor een gezin, thuiswerkers of wie gewoon wat extra ruimte wil. De woonkamer is licht en overzichtelijk, en de tuin aan zowel de voor- als achterzijde zorgt voor volop buitenruimte om van te genieten.
 
De woning heeft energielabel C en is netjes onderhouden, waardoor je er direct in kunt. De overdracht kan snel, perfect als je op korte termijn wilt verhuizen.
 
De ligging is ideaal: met de auto ben je in enkele minuten in Hoogezand en binnen twintig minuten in de stad Groningen. Met de trein zelfs in slechts tien minuten! Voorzieningen zoals winkels, scholen en openbaar vervoer zijn in de directe omgeving aanwezig, en toch woon je hier rustig.
 
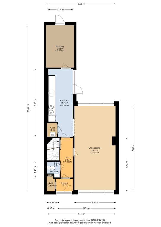
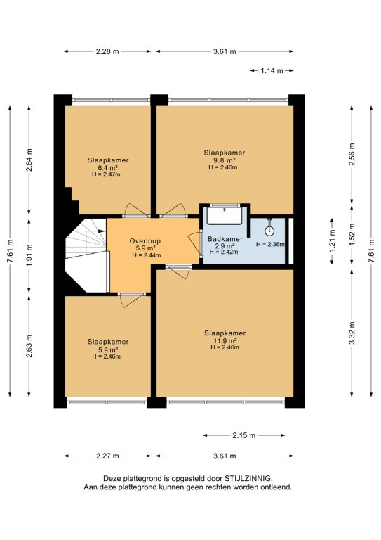
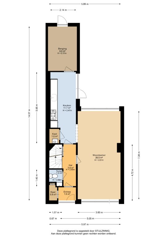
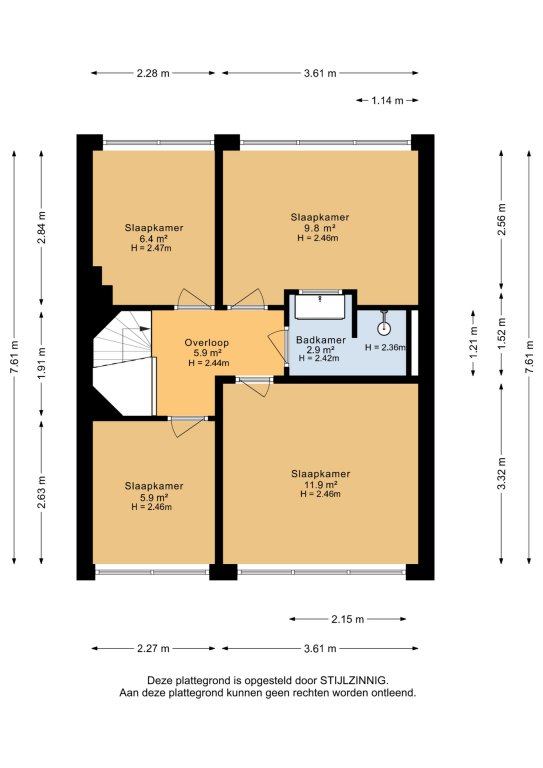
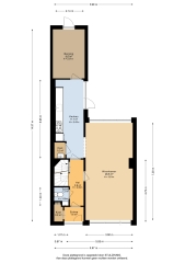
Indeling:
Begane grond: entree met meterkast, hal met toegang tot het toilet, de keuken en de woonkamer. Via de keuken zijn ook de berging en tuin te bereiken.
Eerste verdieping: overloop met toegang tot badkamer en vier slaapkamers (ca. 12 m², 10 m², 6,5 m² en 6m²).
 
Bijzonderheden:
- ruim opgezette woning;
- vier slaapkamers;
- gemoderniseerd in 2022;
- gelegen nabij uitvalswegen en openbaar vervoer;
- SNN-subsidie Waardevermeerdering nog beschikbaar;
- niet-zelfsbewoningsclausule van toepassing.
 
Vraagprijs: € 200.000,- k.k.
Voorkeur aanvaarding: in overleg, kan snel 
 
Klaar voor deze unieke kans? Maak snel een afspraak en ervaar het zelf! We geven je graag een persoonlijke rondleiding. Vraag via Funda een bezichtiging aan en plan direct je eigen afspraak in onze agenda. Je ontvangt een e-mail waarmee je de afspraak eenvoudig kunt inplannen. Bellen kan uiteraard ook naar 050-7601777.
iQ Makelaars Groningen
Kraneweg 23
9718 JD Groningen
 groningen@iqmakelaars.nl
  groningen@iqmakelaars.nl 050 - 760 17 77
  050 - 760 17 77
Maandag t/m vrijdag 9.00 - ca. 17.30 u Zaterdag: 10.00 - ca. 16.00 u.
Over ons
Overig
Volg ons
Onze klanten beoordelen ons met een 9,6 / 10. Elke klant met een unieke ervaring. Benieuwd naar de verhalen?