iQ Makelaars Feedbackcompany
9.5 10
252 reviews
9,6 10
101 beoordelingen
 
GRONINGEN, Zandsteenlaan 87
 

Zandsteenlaan 87 GRONINGEN

Vraagprijs € 325.000,-
k.k.
  iQ Makelaars GRONINGEN, Zandsteenlaan Verkocht OVB
Vraagprijs € 325.000,-
k.k.
Zandsteenlaan 87 GRONINGEN
  • TypeTussenwoning
  • Woonoppervlakte121 m²
  • Perceelgrootte110 m²
  • Slaapkamers5
  • Aangeboden sinds28-11-2025
  • Beschikbaarheid
Vraag bezichtiging aan

Omschrijving

Ruimte, rust en een fijne gezinslocatie aan de Zandsteenlaan!

Ben je op zoek naar een ruime gezinswoning in een rustige straat, maar wel met alle voorzieningen én de stad binnen handbereik? Dan is Zandsteenlaan 87 in Groningen precies wat je zoekt!

Deze nette tussenwoning uit 1971 beschikt over maar liefst 121 m² woonoppervlak en vijf slaapkamers. Daarmee is dit de ideale woning voor gezinnen, thuiswerkers of iedereen die graag wat extra leefruimte heeft. De woning heeft zowel een voor- als achtertuin, waardoor je altijd een plek hebt om van de zon te genieten. Dankzij energielabel C woon je hier bovendien comfortabel en energiezuinig.

Parkeren is hier geen enkel probleem: rondom de woning kun je gratis en openbaar parkeren. De ligging in Vinkhuizen-Zuid is ideaal: een rustige en kindvriendelijke buurt, met speeltuinen, scholen en winkels in de directe omgeving. Met 13 minuten fietsen sta je in de binnenstad van Groningen, maar je bent ook zo de natuur in!
Indeling:
Begane grond: Entree met toegang tot het toilet en de woonkamer met open keuken. Via de keuken is de bijkeuken te bereiken.
Eerste verdieping: overloop met toegang tot vier slaapkamers (ca. 12,8m², 11,1 m², 6,8m² en 6 m²) en de badkamer
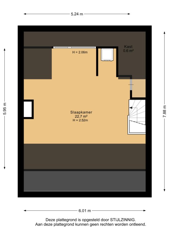
Tweede verdieping: slaapkamer (ca. 22,7 m²).

Bijzonderheden:
- Energielabel C;
- Vijf slaapkamers;
- Voor- en achtertuin;
- Openbaar parkeren;
- Gelegen nabij natuur, sportverenigingen en scholen;

Vraagprijs: € 325.000,- k.k.
Voorkeur aanvaarding: februari / maart 2026

Vraag via Funda een bezichtiging aan en plan direct je eigen afspraak in onze agenda. Je ontvangt een e-mail waarmee je de afspraak eenvoudig kunt inplannen. Bellen kan uiteraard ook via 050-7601777.

Meer

Neem contact op

Specificaties

Bouw

  • Soort Woningen
  • Type Tussenwoning
  • Bouwjaar 1971

Energie

  • Energielabel C

Indeling

  • Slaapkamers 5
  • Tuin Ja
  • Tuin ligging Noordwest

Afmetingen

  • Woonoppervlakte 121 m²
  • Perceeloppervlakte 110 m²
  • Woninginhoud 444 m³
  • Tuin oppervlakte 37 m²
Meer

Afbeeldingen

 
 
 
 
 
 
 
 
 
 
 
 
 
 
 
 
 
 
 
 
 
 
 
 
 
 
 
 
 
 
 
 
 
 
 
 
 
 

Plattegrond

  Pand
  Pand
  Pand
  Pand

Vraag bezichtiging aan

Vergelijkbaar aanbod

Verkocht
GRONINGEN
Hyacinthstraat 143
   € 325.000,- k.k.
Details
Verkocht
GRONINGEN
Vaargeul 229
   € 315.000,- k.k.
Details
Verkocht
GRONINGEN
Oppenheimstraat 18 a
   € 325.000,- k.k.
Details

Wat is jouw huis waard?

Gratis rapport iQ Makelaars Leadtool

Contact

iQ Makelaars Groningen
Kraneweg 23
9718 JD Groningen

Makelaar Groningen  groningen@iqmakelaars.nl
Makelaar Groningen  050 - 760 17 77

050 - 7601 777

Openingstijden

Maandag t/m vrijdag 9.00 - ca. 17.30 u Zaterdag: 10.00 - ca. 16.00 u.

Volg ons

 

Onze beoordelingen

Onze klanten beoordelen ons met een 9,6 / 10. Elke klant met een unieke ervaring. Benieuwd naar de verhalen?

Bekijk alle beoordelingen