iQ Makelaars Feedbackcompany
9.5 10
252 reviews
9,6 10
101 beoordelingen
 
GRONINGEN, Wilkemaheerd 70
 

Wilkemaheerd 70 GRONINGEN

Vraagprijs € 375.000,-
k.k.
Vraagprijs € 375.000,-
k.k.
Wilkemaheerd 70 GRONINGEN
  • TypeHoekwoning
  • Woonoppervlakte156 m²
  • Perceelgrootte255 m²
  • Slaapkamers6
  • Aangeboden sinds09-10-2025
  • Beschikbaarheid
Vraag bezichtiging aan

Omschrijving

Unieke kans! Wil jij royaal wonen en heb je zin in een uitdaging? Dan is deze voormalige fysiopraktijk wellicht jouw droomproject.

Gelegen aan de gewilde Wilkemaheerd ligt deze hoekwoning van maar liefst 156m2 met besloten tuin op het zuiden en carport. De woning beschikt over drie woonlagen en is eenvoudig terug te brengen naar de oude indeling als woonhuis met 5 slaapkamers. De woning heeft zowel de bestemming 'Wonen' als 'Maatschappelijk' , waardoor het object op meerdere manieren te gebruiken is.

De Wilkemaheerd ligt aan de rand van Beijum en kenmerkt zich door rustige, doodlopende straten. Direct voor het huis is een groen speeltuintje gelegen, ideaal voor gezinnen! Het energielabel van de woning is A. De woning is vanuit het bouwjaar redelijk geïsoleerd en later verduurzaamd met vloerisolatie, dubbel glas en recent zijn er 11 zonnepalen (2024).

Beijum is een woonwijk ten noordoosten van de stad Groningen en kenmerkt zich door doodlopende hofjes (heerden), veel groen en goede voorzieningen zoals een winkelcentrum met een uitgebreid aanbod, een basisschool en natuurgebied Kardinge om de hoek. De verbinding met de stad Groningen is zeer goed, via bus en auto ben je binnen een kwartier in het centrum.

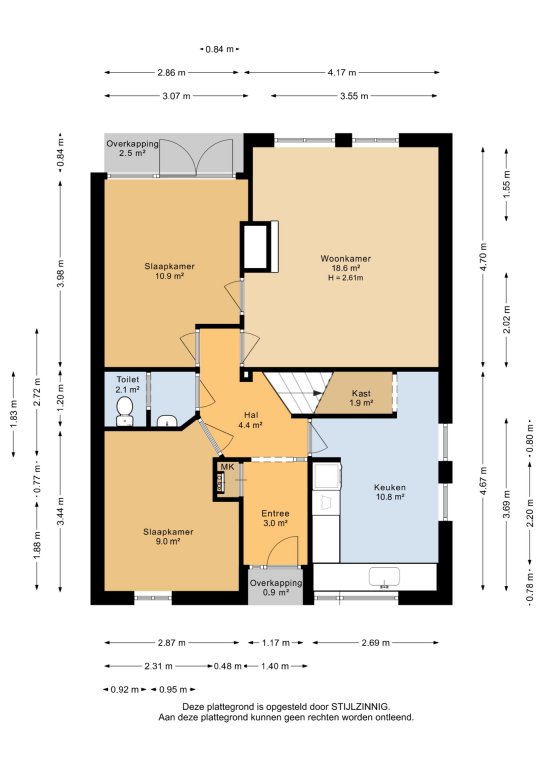
Indeling:

Begane grond:
Entree; hal met meterkast en toilet; dichte keuken aan de voorzijde van de woning; woonkamer en twee aparte (behandel)ruimtes.

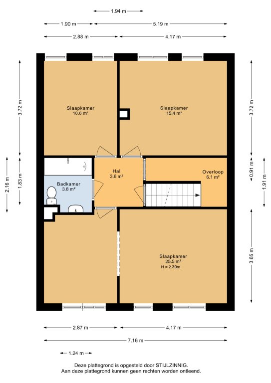
Eerste verdieping:
Overloop; 3/4 behandelruimtes/slaapkamers en badkamer.

Tweede verdieping: overloop en vijfde (slaap)kamer met wastafel.

Buiten: Ruime tuin op het zuiden met schuur en carport van hout.

Bijzonderheden
- Bouwjaar 1982
- Energielabel A
- Verwarming middels Cv-ketel (ouder type)
- Aan de rand van Beijum met weids uitzicht;
- Zeer rustig gelegen aan doodlopend straatje;
- Enkel bestemmingsverkeer;
- Woning met diverse mogelijkheden;
- Mogelijk SNN subsidie beschikbaar voor verduurzaming;
- Niet-zelfbewoningsclausule van toepassing.
- Object is tot 1 januari 2026 verhuurd en zal vrij van huur en gebruik worden opgeleverd
- Projectnotaris van toepassing: De Werven Netwerk Notarissen te Oosterwolde

Vraagprijs: € 375.000,- k.k.
Bezichtigen: mogelijk op vrijdag en zaterdag, vraag een bezichtiging aan via Funda en ontvang direct en link met toegang tot onze agenda!
Aanvaarding: januari 2026

Meer

Neem contact op

iQ Makelaars Groningen
Maaike Diemer
Kraneweg 23
9718 JD Groningen

T  050 - 760 17 77
E  Groningen@iQMakelaars.nl

Specificaties

Bouw

  • Soort Woningen
  • Type Hoekwoning
  • Bouwjaar 1982

Energie

  • Energielabel A

Indeling

  • Slaapkamers 6
  • Tuin Ja
  • Tuin ligging Zuid

Afmetingen

  • Woonoppervlakte 156 m²
  • Perceeloppervlakte 255 m²
  • Woninginhoud 552 m³
  • Tuin oppervlakte 120 m²
Meer

Afbeeldingen

 
 
 
 
 
 
 
 
 
 
 
 
 
 
 
 
 
 
 
 
 
 
 
 
 
 
 
 
 
 
 
 
 
 
 

Vraag bezichtiging aan

Vergelijkbaar aanbod

Verkocht
GRONINGEN
Bolder 33
   € 385.000,- k.k.
Details
Verkocht
GRONINGEN
Alexanderstraat 4 a
   € 365.000,- k.k.
Details
Aangekocht
Groningen
Marsstraat 1
   € 382.001,- k.k.
Details

Wat is jouw huis waard?

Gratis rapport iQ Makelaars Leadtool

Contact

iQ Makelaars Groningen
Kraneweg 23
9718 JD Groningen

Makelaar Groningen  groningen@iqmakelaars.nl
Makelaar Groningen  050 - 760 17 77

050 - 7601 777

Openingstijden

Maandag t/m vrijdag 9.00 - ca. 17.30 u Zaterdag: 10.00 - ca. 16.00 u.

Volg ons

 

Onze beoordelingen

Onze klanten beoordelen ons met een 9,6 / 10. Elke klant met een unieke ervaring. Benieuwd naar de verhalen?

Bekijk alle beoordelingen