iQ Makelaars Feedbackcompany
9.5 10
252 reviews
9,6 10
101 beoordelingen
 
GRONINGEN, Singelweg 76 a
 

Singelweg 76 a GRONINGEN

Vraagprijs € 275.000,-
k.k.
  iQ Makelaars GRONINGEN, Singelweg Verkocht OVB
Vraagprijs € 275.000,-
k.k.
Singelweg 76 a GRONINGEN
  • TypeMaisonnette
  • Woonoppervlakte86 m²
  • Perceelgrootte114 m²
  • Slaapkamers3
  • Aangeboden sinds10-10-2025
  • Beschikbaarheid
Vraag bezichtiging aan

Omschrijving

“Wat een fijne verrassing!” dacht ik meteen toen ik binnenstapte aan de Singelweg 76a. Een heerlijke maisonnette bovenwoning uit 1934, met het geliefde jaren ’30-karakter: sfeervolle details en een prettige indeling. De lichte woonkamer, de open keuken en het uitzicht over het Oosterhamrikkanaal maken het plaatje compleet. De sfeer is warm en huiselijk, (bijna) alles is netjes onderhouden en je kunt er zó in.

Het dakterras is de perfecte plek om in de zon te ontbijten of met vrienden te borrelen terwijl de stad zachtjes om je heen bruist. En met drie slaapkamers heb je hier alle ruimte: voor werken aan huis, een gezin of gewoon een extra logeerplek.

De locatie? Ideaal! Je woont in de Professorenbuurt, tegenover het levendige Ebbingekwartier, het populaire stadsstrand en DOT. De buurt is volop in ontwikkeling, met de nieuwbouw van O-kade krijgt dit stukje stad een frisse boost. De sfeer van oud en nieuw komt hier prachtig samen.

En praktisch? Een energielabel B, instapklaar, en binnen no time ben je in het centrum of op de ringweg.
Klaar voor een woning met karakter én comfort? Maak snel een afspraak, wij laten je deze plek met plezier zelf ervaren!”

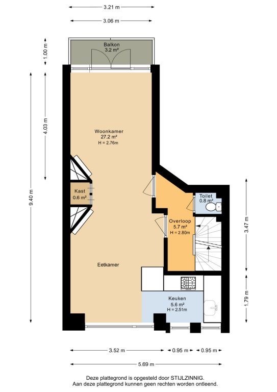
INDELING
Begane grond: entree, trap.
Eerste verdieping: overloop met meterkast, toilet, woon-/eetkamer met open keuken. De keuken is voorzien van diverse apparatuur (o.a. vaatwasser, koelkast, kookplaat, afzuigkap en oven). Openslaande deuren naar balkon aan de achterzijde.
Tweede verdieping: overloop, drie ruime slaapkamers, waarvan twee met toegang tot het fijne dakterras. Badkamer met douche, wastafel, wasmachineaansluiting en opstelling van de cv-ketel.

Er is een mandelige gang met een eigen fietsenberging aanwezig; deze dient echter opnieuw te worden opgebouwd.

EXTRA
. Voorzijde kunststof kozijnen, achterzijde houten kozijnen
. Cv-ketel: Remeha, eigendom (2016)
. Slapende VvE (betreft: Singelweg 76 en 76a)
. Bouwjaar: 1934
. Ouderdomsclausule en niet-zelfbewoningsclausule van toepassing
. Deels gestoffeerde woning: de vloeren blijven achter

Vraagprijs: € 275.000,- k.k.
Aanvaarding: in overleg, kan snel indien gewenst

Vraag via Funda een bezichtiging aan en plan direct je eigen afspraak in onze agenda. Je ontvangt een e-mail waarmee je de afspraak eenvoudig kunt inplannen. Bellen kan uiteraard ook via 050-7601777.

Meer

Neem contact op

iQ Makelaars Groningen
Lana Schrier
Kraneweg 23
9718 JD Groningen

T  050 - 760 17 77
E  Groningen@iQMakelaars.nl

Specificaties

Bouw

  • Soort Woningen
  • Type Maisonnette
  • Bouwjaar 1934

Energie

  • Energielabel B

Indeling

  • Slaapkamers 3

Afmetingen

  • Woonoppervlakte 86 m²
  • Perceeloppervlakte 114 m²
  • Woninginhoud 303 m³
Meer

Afbeeldingen

 
 
 
 
 
 
 
 
 
 
 
 
 
 
 
 
 
 
 
 
 
 
 
 
 
 
 
 
 
 
 
 
 
 
 
 
 
 
 
 
 

Plattegrond

  Pand
  Pand
  Pand

Vraag bezichtiging aan

Vergelijkbaar aanbod

Verkocht
GRONINGEN
Bezettingslaan 1
   € 275.000,- k.k.
Details
Verkocht
GRONINGEN
Coehoornsingel 21 c
   € 269.500,- k.k.
Details
Verkocht
GRONINGEN
Prunusstraat 120
   € 275.000,- k.k.
Details

Wat is jouw huis waard?

Gratis rapport iQ Makelaars Leadtool

Contact

iQ Makelaars Groningen
Kraneweg 23
9718 JD Groningen

Makelaar Groningen  groningen@iqmakelaars.nl
Makelaar Groningen  050 - 760 17 77

050 - 7601 777

Openingstijden

Maandag t/m vrijdag 9.00 - ca. 17.30 u Zaterdag: 10.00 - ca. 16.00 u.

Volg ons

 

Onze beoordelingen

Onze klanten beoordelen ons met een 9,6 / 10. Elke klant met een unieke ervaring. Benieuwd naar de verhalen?

Bekijk alle beoordelingen