iQ Makelaars Feedbackcompany
9.5 10
252 reviews
9,6 10
101 beoordelingen
 
GRONINGEN, Rubensstraat 2
 

Rubensstraat 2 GRONINGEN

Vraagprijs € 350.000,-
k.k.
  iQ Makelaars GRONINGEN, Rubensstraat Verkocht OVB
Vraagprijs € 350.000,-
k.k.
Rubensstraat 2 GRONINGEN
  • TypeMaisonnette
  • Woonoppervlakte84 m²
  • Slaapkamers2
  • Aangeboden sinds20-10-2025
  • Beschikbaarheid
Vraag bezichtiging aan

Omschrijving

“Wat een uitzicht!” Dat was mijn eerste gedachte toen ik binnenkwam aan de Rubensstraat 2. Zodra je de woonkamer instapt, kijk je zó uit over het Reitdiep, een prachtig uitzicht dat elke keer weer anders is. In de zomer zie je voorbijvarende bootjes en in de winter zie je misschien wel iemand schaatsen!

Deze maisonnette bovenwoning combineert moderne luxe met de rust en charme van de Schildersbuurt. De afwerking is tot in de puntjes verzorgd: een luxe keuken, stijlvolle badkamer en modern toilet. Dankzij de hoekligging en de glazen deuren voelt de woning licht, open en ruimtelijk aan.

Buiten genieten doe je op het balkon of het dakterras, met een fantastisch uitzicht over het water, de stad en iconische torens zoals de Watertoren en Martinitoren. Een ideale plek om te ontspannen, te borrelen of gewoon te genieten van de zon en de sfeer van Groningen.
De woning is duurzaam en comfortabel: voorzien van muur- en dakisolatie, dubbel glas en vier zonnepanelen. Dankzij de actieve VvE is het onderhoud goed geregeld, waardoor dit een onderhoudsarm appartement is.

Je woont hier in een verborgen stukje Groningen, verscholen in het groen en weg van de drukte, maar toch op een steenworp afstand van de bruisende binnenstad. Het voelt alsof je buiten woont, maar dan met alle voordelen van de stad binnen handbereik. Zin in reuring? Binnen vijf minuten fietsen sta je midden in het centrum. Ook het idyllische Noorderplantsoen ligt om de hoek. Met de auto ben je zo op de ringweg, en parkeren doe je gewoon voor de deur. Alles klopt hier.

Maak snel een afspraak en ervaar zelf deze unieke woning aan het Reitdiep!

INDELING
Eerste verdieping: entree, hal met meterkast en trapopgang.
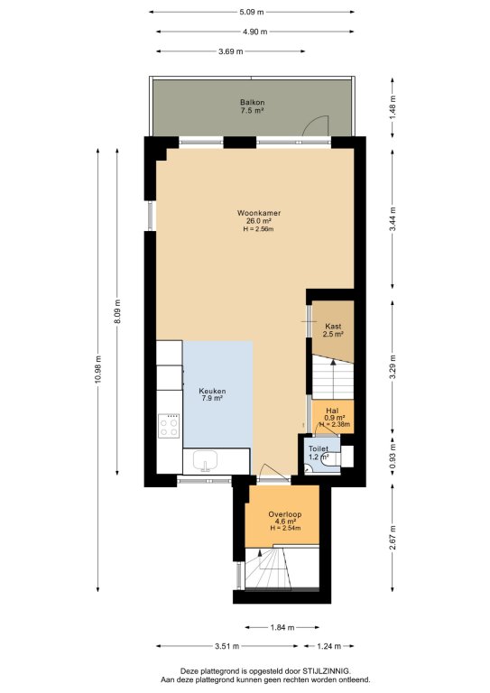
Tweede verdieping: hal, woon-/eetkamer met open keuken voorzien van diverse apparatuur (inductiekookplaat, afzuigkap, koelkast, vriezer, heetwaterkraan, oven), openslaande deur naar het balkon, hal met toegang naar het toilet met wastafel.
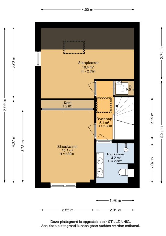
Derde verdieping: overloop, twee ruime slaapkamers, moderne badkamer met douche, wastafelmeubel en toilet.
Via losse trap bereikbaar is het fantastische dakterras!

EXTRA
. Eigen stenen fietsenberging
. Cv-ketel: Remeha, eigendom (2021)
. Door de jaren heen is er veel onderhoud uitgevoerd: hoofddak is in 2017, vervangen, badkamer, toilet en keuken zijn 2021 vervangen, buitenschilderwerk is in 2025 gedaan,
. 4 zonnepanelen aanwezig (2023)
. Actieve VvE: Vereniging Van Eigenaars Flat Rubensstraat 1 t/m 4. Er is een maandelijkse bijdrage van € 75,- (opstalverzekering en onderhoud).
. Ouderdomsclausule van toepassing
. Gestoffeerde woning: de vloeren en raambekleding blijven achter

Vraagprijs: € 350.000,- k.k.
Aanvaarding: in overleg

Vraag via Funda een bezichtiging aan en plan direct je eigen afspraak in onze agenda. Je ontvangt een e-mail waarmee je de afspraak eenvoudig kunt inplannen. Bellen kan uiteraard ook via 050-7601777.

Meer

Neem contact op

Specificaties

Bouw

  • Soort Woningen
  • Type Maisonnette
  • Bouwjaar 1979

Energie

  • Energielabel B

Indeling

  • Slaapkamers 2

Afmetingen

  • Woonoppervlakte 84 m²
  • Woninginhoud 282 m³
Meer

Afbeeldingen

 
 
 
 
 
 
 
 
 
 
 
 
 
 
 
 
 
 
 
 
 
 
 
 
 
 
 
 
 
 
 
 
 
 
 
 
 
 
 
 
 
 

Plattegrond

  Pand
  Pand
  Pand
  Pand
  Pand

Vraag bezichtiging aan

Vergelijkbaar aanbod

Verkocht
GRONINGEN
Damsterkade 3 a
   € 349.000,- k.k.
Details
Verkocht
GRONINGEN
Damsterwaard 13
   € 345.000,- k.k.
Details
Verkocht
GRONINGEN
Hiddemaheerd 96 a
   € 349.500,- k.k.
Details

Wat is jouw huis waard?

Gratis rapport iQ Makelaars Leadtool

Contact

iQ Makelaars Groningen
Kraneweg 23
9718 JD Groningen

Makelaar Groningen  groningen@iqmakelaars.nl
Makelaar Groningen  050 - 760 17 77

050 - 7601 777

Openingstijden

Maandag t/m vrijdag 9.00 - ca. 17.30 u Zaterdag: 10.00 - ca. 16.00 u.

Volg ons

 

Onze beoordelingen

Onze klanten beoordelen ons met een 9,6 / 10. Elke klant met een unieke ervaring. Benieuwd naar de verhalen?

Bekijk alle beoordelingen