iQ Makelaars Feedbackcompany
9.5 10
252 reviews
9,6 10
101 beoordelingen
 
GRONINGEN, Multatulistraat 21
 

Multatulistraat 21 GRONINGEN

Vraagprijs € 235.000,-
k.k.
  iQ Makelaars GRONINGEN, Multatulistraat Verkocht OVB
Vraagprijs € 235.000,-
k.k.
Multatulistraat 21 GRONINGEN
  • TypeFlat (galerij/portiek)
  • Woonoppervlakte70 m²
  • Slaapkamers2
  • Aangeboden sinds16-03-2026
  • Beschikbaarheid
Vraag bezichtiging aan

Omschrijving

Licht en comfortabel wonen aan de Multatulistraat!

Aan de Multatulistraat 21 vind je dit fijne appartement van circa 70 m². De woning beschikt over twee slaapkamers, een moderne keuken en badkamer (beide vernieuwd in 2020) en een praktische indeling. Ideaal voor starters, stellen of iedereen die graag dicht bij voorzieningen en goede bereikbaarheid woont.

Een groot pluspunt zijn de twee balkons: één gelegen op het oosten en één op het westen. Zo kun je zowel ’s ochtends als later op de dag van de zon genieten.

Het appartement is gebouwd in 1965 en beschikt over een energielabel B. Dankzij de CV-ketel uit 2020 en de vernieuwde keuken en badkamer is de woning goed onderhouden en instapklaar. De woonkamer is licht en prettig van formaat en biedt genoeg ruimte voor zowel een gezellige zithoek als een eettafel.

Daarnaast zijn er twee slaapkamers, wat het appartement geschikt maakt voor bijvoorbeeld een thuiswerkplek of logeerkamer. Extra praktisch is de inpandige berging, ideaal voor opslag of het stallen van fietsen.

De VvE is actief en de maandelijkse bijdrage bedraagt € 132,-, wat zorgt voor goed onderhoud van het complex.

De ligging is erg prettig. Het appartement bevindt zich op korte afstand van het Overwinningsplein, waar je terecht kunt voor onder andere supermarkten, winkels en andere dagelijkse voorzieningen.
Ook de bereikbaarheid is uitstekend: uitvalswegen zijn snel bereikbaar en met ongeveer 10 minuten fietsen sta je in het centrum van Groningen. Daarmee combineer je hier rustig wonen met het gemak van de stad binnen handbereik.

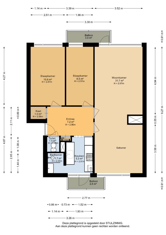
Indeling:
Hal met toegang tot keuken, woon-/eetkamer, twee slaapkamers (ca. 10.8m² en 8,5m²) en het toilet. Vanuit de keuken is de badkamer en balkon op het oosten te bereiken. Vanuit de woonkamer is het balkon op het westen te bereiken.

Bijzonderheden:
- energielabel B;
- badkamer en keuken gerenoveerd in 2020;
- gelegen nabij Overwinningsplein;
- cv-ketel uit 2020;
- bouwjaar 1965;
- niet-zelfbewoningsclausule van toepassing.

Vraagprijs: € 235.000,-
Aanvaarding: in overleg, kan snel

Dus, ben jij benieuwd of dit jouw nieuwe huis is?
Wanneer je via Funda een bezichtiging aanvraagt voor een woning, ontvang je per e-mail een bericht om de bezichtiging in te plannen op een moment dat jou uitkomt. Je kunt er ook voor kiezen om direct via onze eigen website een afspraak te maken. Ga hiervoor naar de pagina van de betreffende woning en plan eenvoudig zelf een bezichtiging in via de beschikbare link.

Uiteraard kun je ons ook altijd telefonisch bereiken via 050 7601 777 om een afspraak te maken of als je nog vragen hebt. We helpen je graag verder!

Meer

Neem contact op

Specificaties

Bouw

  • Soort Woningen
  • Type Flat (galerij/portiek)
  • Bouwjaar 1965

Energie

  • Energielabel B

Indeling

  • Slaapkamers 2

Afmetingen

  • Woonoppervlakte 70 m²
  • Woninginhoud 224 m³
Meer

Afbeeldingen

 
 
 
 
 
 
 
 
 
 
 
 
 
 
 
 
 
 
 
 
 
 
 
 
 
 
 
 
 

Plattegrond

  Pand
  Pand

Vraag bezichtiging aan

Vergelijkbaar aanbod

Verkocht
GRONINGEN
Jacob van Ruysdaelstraat 60
   € 245.000,- k.k.
Details
Verkocht
GRONINGEN
Driemolendrift 22 b
   € 245.000,- k.k.
Details
Verkocht
GRONINGEN
Hortensialaan 62
   € 235.000,- k.k.
Details

Contact

iQ Makelaars Groningen
Kraneweg 23
9718 JD Groningen

Makelaar Groningen  groningen@iqmakelaars.nl
Makelaar Groningen  050 - 760 17 77

050 - 7601 777

Openingstijden

Maandag t/m vrijdag 9.00 - ca. 17.30 u Zaterdag: 10.00 - ca. 16.00 u.

Volg ons

 

Onze beoordelingen

Onze klanten beoordelen ons met een 9,6 / 10. Elke klant met een unieke ervaring. Benieuwd naar de verhalen?

Bekijk alle beoordelingen