iQ Makelaars Feedbackcompany
9.5 10
252 reviews
9,6 10
101 beoordelingen
 
GRONINGEN, Marwixstraat 7 a
 

Marwixstraat 7 a GRONINGEN

Vraagprijs € 365.000,-
k.k.
Vraagprijs € 365.000,-
k.k.
Marwixstraat 7 a GRONINGEN
  • TypeBovenwoning
  • Woonoppervlakte87 m²
  • Perceelgrootte102 m²
  • Slaapkamers2
  • Aangeboden sinds10-03-2026
  • Beschikbaarheid
Vraag bezichtiging aan

Omschrijving

Charmante dubbele bovenwoning uit 1896 met zonnig dakterras!

Verkoper aan het woord:
"Je koopt geen huis, maar een thuis. Vanaf het moment dat ik dit prachtige historische pand binnenstapte wist ik het: liefde op het eerste gezicht. De 3,5 meter hoge plafonds, het overvloedige licht en de karakteristieke details uit 1896 geven het huis een ziel die je direct voelt.
Het ademt geschiedenis en combineert sfeer moeiteloos met comfort. Het is ruim en praktisch ingedeeld, met riante bergruimte en een zonnig terras waar je vrijwel de hele dag van de zon geniet. Vanaf de bank kijk je uit op het Sluiskantoor en de Akerk toren en met het station op nog geen 400 meter afstand is de ligging ideaal.
Mijn toekomst ligt in de Randstad maar dit is zonder twijfel het mooiste huis waar ik ooit heb gewoond. Ik hoop met heel mijn hart dat de volgende eigenaar er net zo verliefd op wordt als ik."

Makelaar aan het woord:
Wat een ontzettend charmante en karaktervolle woning! Gelegen in het historische hart van Groningen, combineert deze dubbele bovenwoning authentieke details met modern comfort. De hoge plafonds, veel lichtinval en ruime kamers maken het een plek waar je je direct thuis voelt. Het zonnige dakterras op het zuiden is een echte eyecatcher en perfect om (bijna) de hele dag van de zon te genieten.

De locatie is daarnaast optimaal! Rustig gelegen, maar nabij alle voorzieningen. Het station, winkelcentrum Westerhaven en de binnenstad zijn allemaal met 5 minuten wandelen te bereiken.

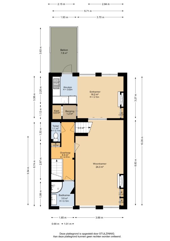
Indeling:
Begane grond; entree met toegang tot de eerste verdieping
Eerste verdieping: Hal met toegang tot de badkamer, het toilet en de woonkamer en suite met ruime zitkamer aan de voorzijde en een fraaie woon-/eetkeuken aan de achterzijde (totaal circa 45 m²). Vanaf de keuken/eetkamer is het zonnige dakterras te bereiken.
Tweede verdieping: Overloop met witgoedaansluiting en toegang tot twee slaapkamers.

Bijzonderheden:
- Dakterras op het zuiden;
- Charmante bovenwoning met authentieke elementen;
- Gebouwd in 1896;
- CV-ketel uit 2019;
- Dak uit 2012;
- Geweldig gelegen nabij voorzieningen en uitvalswegen;

Vraagprijs: € 365.000,- k.k.
Voorkeur aanvaarding: in overleg, rond 1 juni.

Dus, ben jij benieuwd of dit jouw nieuwe huis is? Neem snel contact op en wij leiden je graag rond! Nieuw bij iQ Makelaars; plan je eigen afspraak in; doe een aanvraag via Funda en krijg direct toegang tot onze agenda.

Meer

Neem contact op

Specificaties

Bouw

  • Soort Woningen
  • Type Bovenwoning
  • Bouwjaar 1896

Energie

  • Energielabel D

Indeling

  • Slaapkamers 2

Afmetingen

  • Woonoppervlakte 87 m²
  • Perceeloppervlakte 102 m²
  • Woninginhoud 350 m³
Meer

Plattegrond

  Pand
  Pand
  Pand

Vraag bezichtiging aan

Vergelijkbaar aanbod

Verkocht
GRONINGEN
Alexanderstraat 4 a
   € 365.000,- k.k.
Details
Verkocht
GRONINGEN
Wilkemaheerd 70
   € 375.000,- k.k.
Details
Aangekocht
Groningen
Kruitgracht 23
   € 355.000,- k.k.
Details

Contact

iQ Makelaars Groningen
Kraneweg 23
9718 JD Groningen

Makelaar Groningen  groningen@iqmakelaars.nl
Makelaar Groningen  050 - 760 17 77

050 - 7601 777

Openingstijden

Maandag t/m vrijdag 9.00 - ca. 17.30 u Zaterdag: 10.00 - ca. 16.00 u.

Volg ons

 

Onze beoordelingen

Onze klanten beoordelen ons met een 9,6 / 10. Elke klant met een unieke ervaring. Benieuwd naar de verhalen?

Bekijk alle beoordelingen