iQ Makelaars Feedbackcompany
9.5 10
252 reviews
9,6 10
101 beoordelingen
 
GRONINGEN, Kraneweg 88 a
 

Kraneweg 88 a GRONINGEN

Vraagprijs € 425.000,-
k.k.
Vraagprijs € 425.000,-
k.k.
Kraneweg 88 a GRONINGEN
  • TypeBovenwoning
  • Woonoppervlakte171 m²
  • Slaapkamers5
  • Aangeboden sinds31-10-2025
  • Beschikbaarheid
Vraag bezichtiging aan

Omschrijving

Wonen in een stukje na-oorlogse historie! Gelegen aan de bekende Kraneweg ervaar je hier de rust maar ook de dynamiek van de stad zodra je naar buiten kijkt. De woning heeft een fijne, authentieke sfeer met de grandeur van toen. Met maar liefst 3 verdiepingen en een bruto vloeroppervlak van ruim 171m² biedt dit appartement voldoende ruimte voor een divers publiek.

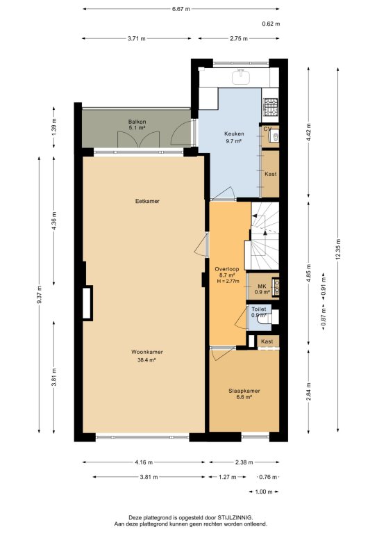
Zodra je binnenkomt valt direct de royale maatvoering op; met een woonoppervlakte van 171 m² is dit geen doorsnee appartement. De woonkamer is licht en ruim en biedt toegang tot één van de twee zonnige balkons op het zuidoosten. Hier geniet je van de ochtend- en middagzon met uitzicht over de straat en binnentuinen. De keuken is in 2018 vernieuwd en sluit perfect aan bij de wensen van deze tijd: modern, functioneel en met voldoende werkruimte. De badkamer is in 2019 gemoderniseerd en beschikt over een ligbad en inloopdouche.

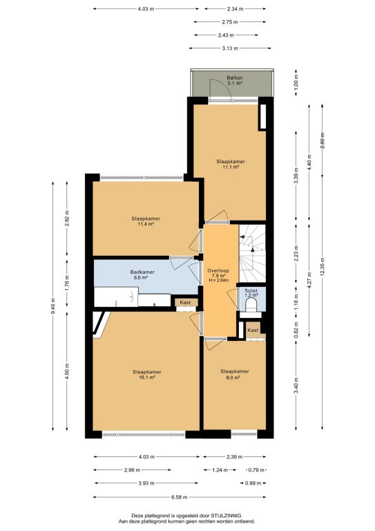
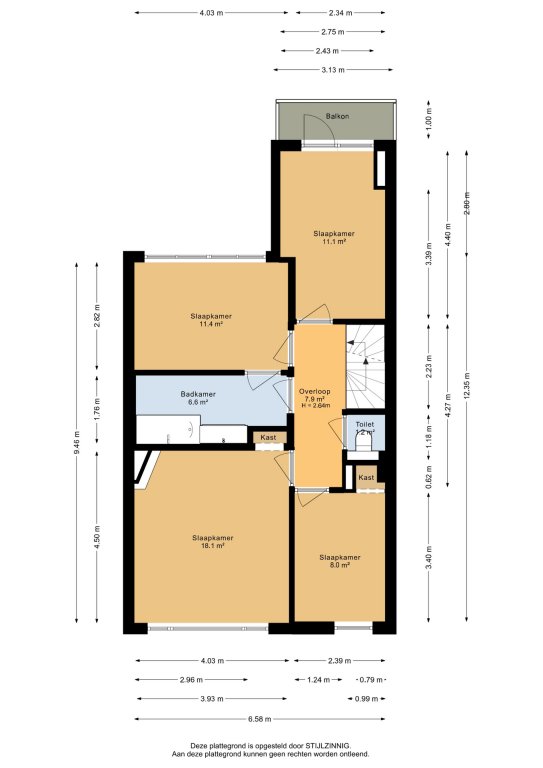
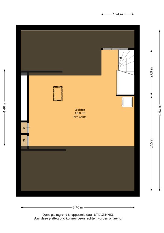
Verspreid over de eerste en tweede verdieping vind je in totaal vijf slaapkamers – ideaal voor een gezin, werkruimtes of hobbykamers. Op de derde verdieping is nog eens een zolder van 30 m² aanwezig, perfect als opslag of met potentie voor een extra (slaap)kamer. Op deze verdieping is het waarschijnlijk mogelijk om een dakterras aan te leggen. Daarnaast is er ook een losse fietsenberging aanwezig.

Stukje historie: Voor de tweede wereldoorlog stond op deze plek de 'Groningsche Kook- en Huishoudschool NV' welke helaas gebombardeerd werd toen Duitsland Groningen binnenviel via de Kraneweg. Na de oorlog werd het huidige complex met beneden- en bovenwoningen gebouwd.

Bezichtigen? Vraag een bezichtiging aan via Funda en ontvang direct een link met toegang tot onze agenda!

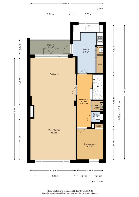
Indeling:
Begane grond: entree met trapopgang naar eerste verdieping
Eerste verdieping: entree; hal met toilet; slaapkamer; lichte woonkamer met toegang tot balkon; keuken met toegang tot het balkon.
Tweede verdieping: overloop met toilet, badkamer en vier slaapkamers waarvan één met toegang tot het balkon.
Derde verdieping: ruime zolder (ca. 30 m²).

Bijzonderheden:
- Bouwjaar 1951
- Woonoppervlakte ca. 171 m²
- Twee balkons op het zuidoosten
- Vijf slaapkamers
- Keuken uit 2018
- Badkamer uit 2019
- Energielabel D
- Mogelijkheid tot realiseren dakterras aan de achterzijde (vergunning nodig)

Vanafprijs: € 425.000,- k.k.
Aanvaarding: in overleg, kan snel.

Klaar voor deze unieke kans? Maak snel een afspraak en ervaar het zelf! We geven je graag een persoonlijke rondleiding.
Vraag via Funda een bezichtiging aan en plan direct je eigen afspraak in onze agenda. Je ontvangt een e-mail waarmee je de afspraak eenvoudig kunt inplannen. Bellen kan uiteraard ook naar 050-7601777.

Meer

Neem contact op

Specificaties

Bouw

  • Soort Woningen
  • Type Bovenwoning
  • Bouwjaar 1951

Energie

  • Energielabel D

Indeling

  • Slaapkamers 5

Afmetingen

  • Woonoppervlakte 171 m²
  • Woninginhoud 606 m³
Meer

Plattegrond

  Pand
  Pand
  Pand
  Pand
  Pand

Vraag bezichtiging aan

Vergelijkbaar aanbod

Verkocht
GRONINGEN
Heijplaat 14
   € 425.000,- k.k.
Details
Verkocht
GRONINGEN
Kraneweg 101
   € 425.000,- k.k.
Details
Verkocht
GRONINGEN
Klaas Schipperlaan 18
   € 425.000,- k.k.
Details

Wat is jouw huis waard?

Gratis rapport iQ Makelaars Leadtool

Contact

iQ Makelaars Groningen
Kraneweg 23
9718 JD Groningen

Makelaar Groningen  groningen@iqmakelaars.nl
Makelaar Groningen  050 - 760 17 77

050 - 7601 777

Openingstijden

Maandag t/m vrijdag 9.00 - ca. 17.30 u Zaterdag: 10.00 - ca. 16.00 u.

Volg ons

 

Onze beoordelingen

Onze klanten beoordelen ons met een 9,6 / 10. Elke klant met een unieke ervaring. Benieuwd naar de verhalen?

Bekijk alle beoordelingen